

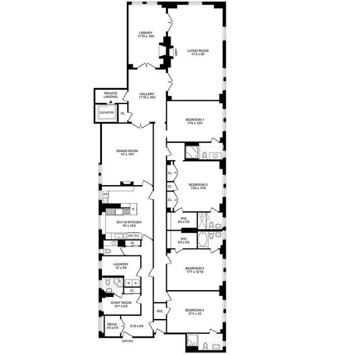
Our recent renovation at 1035 5th Avenue found us in the middle of quintessential Manhattan. Overlooking Central Park, this beautiful Italian Renaissance Palazzo co-op is located on Fifth and 85th street, just down the street from The Met. When our client purchased this 4,000 square foot pre-war property, the space hadn’t been updated in more than 50 years. The vision for this renovation called for a complete design overhaul of the extensive space, while incorporating many of the prior architectural elements and elegant marble accents, while also creating an additional bathroom and powder room. While the results speak for themselves, the client’s glowing praise for our full-service approach went a long way.
Typically, when fully renovating a pre-war apartment in NYC, the job often welcomes a gut renovation, in order to fully customize and modernize the dated space as needed. However, in the case of this 4,000 square foot historic home, the architectural accents and original marble offer one-of-a-kind design opportunities that add and maintain value, so a full gut renovation was out of the question.
For us, the biggest challenge became protecting those distinguished details, while also blending into new additions so the final look was cohesive. That fine touch required an immense amount of customization and specific trims to match existing, along with floor restoration in the majority of the home that included stitching to large portions of the original parquet flooring to ensure proper blend. We also rewired 60% of the property, which required strategic openings to ensure nothing of pre-war significance was altered. To honor the marble accents throughout the space, we polished every surface and matched certain epoxies when required to get as close as possible to the original look and feel.


To match the foundational pre-war details, our transitional design plan called for accentuating the millwork throughout the space. The focal point of this immaculate woodwork is the library, which features wall to wall white oak shelving and paneled millwork throughout the entire space. Focal point features in the kitchen and family room exhibit extensive millwork upgrades as well, as do the bedrooms. The kids room features a custom white oak bunk-bed that is built floor-to-ceiling with steps on the side for easy and safe access.
Another significant challenge when renovating this pre-war co-op was creating central air in the space without having to drop ceilings that would impact the period aesthetics, or more importantly block any of the Central Park views. Our solution was a true split HVAC called a VRV system, which we placed in the back laundry room. This required us to turn the space into a formal indoor/outdoor room that allowed the condenser to have circulation of fresh air from outside while still being well-insulated by residing inside. To do this, we removed a window and created an automatic louver that opens and closes accordingly as the VRV system cycles on and off. The room is also equipped with a drainage system so any water managing to trickle inside immediately gets drained. Finally, we ran heat trace lines on all the plumbing pipes so they’ll never freeze, as a secondary measure beyond insulation.


Additional Highlights
Considering a co-op renovation in NYC? View our portfolio of condo renovation before and afters, learn more about Gallery, or simply contact us today. If you’re planning a renovation at 1035 5th Ave, we’ve put together an insider’s guide - Renovating in 1035 5th Avenue: What to Know - based on firsthand experience working in the building. It’s a perspective that gets into the details most firms miss, and one you won’t really find anywhere else.
Gallery KBNY is an award-winning design-build firm in New York City with a full-service approach to residential renovations that includes everything from interior design and architectural services to facilitating building management and board approval, to construction and construction management. We’re experts in pre-war renovations, full home renovations, apartment combinations, and all that falls in between. Let Gallery bring your dream home to life.
















































.avif)