Before overhauling your home, consider the complications surrounding NYC renovation approvals and permits.
December 14, 2022
|

What To Know About Renovation Approvals And Permitting In NYC
Considering a renovation in New York City? Make sure to educate yourself on the complications surrounding NYC renovation approvals and permits.
Obtaining proper approvals and permits is a crucial aspect to most renovations in NYC. Without logistical due diligence with entities like the NYC Dept Of Buildings and your co-op board, even the most complete renovation plans can fall flat. At Gallery, we handle all permitting and renovation approvals on behalf of our clients.
Depending on your type of home and renovation plans, there are various permits associated with renovating in New York City, which may include:
Obtaining a work permit from the NYC Department of Buildings helps ensure the renovation meets building code. Obtaining a work permit typically requires a New York State Registered Architect (R.A.) or Professional Engineer (P.E.), which Gallery incorporates as part of our full-service design-build approach. There are fees associated with work permits, often ranging around $5,000, which we include in our comprehensive cost.
We also handle obtaining and the filing of all mechanical, electrical and plumbing (MEP) permits from the NYC DOB, as well.
Since 20% of Manhattan is made up of landmark properties, many of the homes we renovate are designated a landmark or located on a landmark street. Those designations require a landmark approval from the Landmark Preservation Commission before renovating. Additionally, if landmark status, the LPC must also approve all exterior street facing materials and design aesthetics prior to implementation, otherwise an LPC certificate of no effect is obtained.
Because NYC condos and co-ops are usually located in managed buildings , approvals from building management and the respective co-op or condo board are mandatory for many renovation requests. Examples of renovations that require prior approvals may include:
Certain boards may prevent moving specific fixtures, including the kitchen sinks, toilet and shower. Since all condos and co-ops have unique renovation requirements, the list of renovation allowances will vary from property to property.

With the dated nature of many NYC properties, our planning process includes precautionary tests to find and remediate any potential skeletons in the home’s closet before they can hinder the renovation.
Testing for asbestos in the early planning stages is not only smart planning but often required in order to file architectural plans. As part of this process we plan for any added effort required for removal or see if there are workaround cost saving measures that can leave the asbestos undisturbed. By law, if work disturbs the asbestos, mitigation is required and bringing in an asbestos remediation company for asbestos removal and air quality monitoring is likely needed. However if preliminary tests confirm asbestos won’t be disturbed during the work, we’ll plan to avoid the area and issue altogether.
There are two main reasons electrical tests are required before an NYC renovation. The first is to confirm there’s no cloth wiring, which was common in the 40’s/50’s and will not pass inspection. The second is to ensure the electrical capacity of the townhome can handle the proposed electrical load requirements of the renovation - which isn’t always the case in older buildings.
Required if any part of the renovation will be touching plumbing, such as the kitchen or bathroom.

When adding or removing a wall, a work permit is required from the NYC DOB.
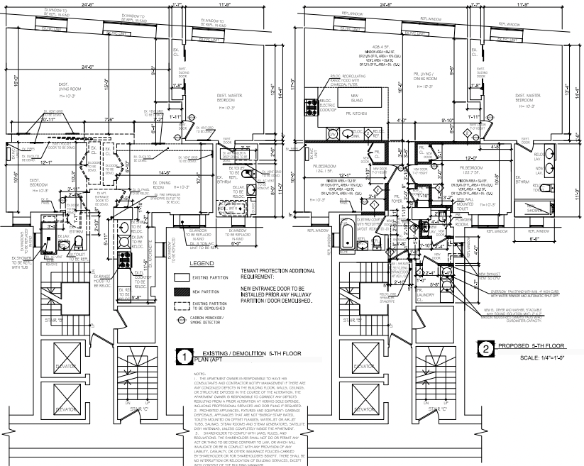
When adding a room in an apartment, changing an apartment’s room count, or adjusting an apartment’s layout, a Alteration Type 2 permit is required from the NYC DOB. New rooms should always comply with light and air requirements, minimum room size and various codes.
Bathroom additions usually require an Alteration Type 2 permit, but since every building is different, certain renovations have further restrictions which must be accounted for with the building’s management first to understand any unique requirements or wet-dry restrictions that may dictate our architectural plan.
With real estate at a premium, combining apartments in New York City is often the path of least resistance when trying to find a bigger home. Due to the complicated nature of these renovations, various permits and limitations are put in place when apartments are combined, including:
Any complete gut renovation requires an Alteration Type 2 permit.

When renovating in NYC, keep in mind timelines for each respective permit and approval differ based on building type and renovation requirements, as well as demand for the approval parties. For more information on New York City renovation timelines, see pertinent content from our Design & Renovation blog below:

Navigating the intricacies of renovation approvals and permitting in NYC begins long before the first hammer swings. For prospective property buyers, conducting due diligence is essential to ensure a smooth transition into the renovation phase. Here are a few critical scenarios to consider during the purchase process:
Buyers must diligently review the property's history to uncover any existing permits or renovations undertaken by previous owners. Full disclosure of permit information ensures future renovations can proceed without legal complications. For example, discovering an open permit for a past renovation could signal potential issues that need to be addressed before proceeding with new construction.
If renovating a private home or townhome then understanding local zoning regulations is crucial for assessing the feasibility of planned renovations. Buyers should research zoning laws, building codes, and historic preservation requirements to determine any restrictions or limitations that may impact their renovation project. For instance, discovering that a property is located within a historic district may necessitate additional approvals from the LPC and compliance with preservation guidelines.
A comprehensive assessment of the property's condition is vital for identifying any structural issues or code violations that may affect the renovation process. Buyers should enlist the services of qualified inspectors to thoroughly examine the property for potential issues such as faulty wiring, plumbing leaks, or structural damage. Uncovering such issues early on can prevent costly surprises during the renovation phase.
By proactively addressing these considerations during the property acquisition phase, buyers can lay a solid foundation for successful renovations in NYC. Conducting thorough due diligence and seeking expert guidance from a full-service design-build firm can help mitigate risks and ensure a seamless transition into the renovation process.
In the realm of property acquisition and renovation approvals, ensuring all permits are properly closed out is paramount for a seamless transition into the renovation phase. Here are some key considerations to keep in mind:
Securing new permits for renovations in the presence of open permits from prior work can present challenges. The NYC Department of Buildings may mandate the resolution of these open permits before issuing new ones. Here's what the process may entail:
Navigating the resolution of open permits alongside the acquisition of new permits demands careful attention to detail and adherence to regulatory requirements. Whether on your own or with assistance from a full-service design-build firm, collaborating closely with the NYC Department of Buildings and following the prescribed procedures allows property owners to address open permit issues efficiently and proceed with their renovation projects in compliance with city regulations.
If a client is considering purchasing a property with open permits from a previous renovation, several crucial steps should be taken into account:
By addressing open permits as part of the property acquisition process, buyers can mitigate potential risks, ensure a smooth transition, and lay the groundwork for any future renovation plans. It's crucial to establish a clear understanding and agreement regarding permit resolution to avoid complications and facilitate a successful property purchase.
As a full-service design-build firm in New York City, Gallery KBNY takes on the responsibility of handling all the red tape involved in your renovation, whether we’re restoring a brownstone in Brooklyn or upgrading a luxury loft in Manhattan. This includes reviewing and satisfying your board’s alteration agreement, filing all relevant architectural plans with the Department of Buildings, and procurement of all necessary permits. Plus, we include all approval, test and permit costs as line items under one comprehensive bottom line. That all-inclusive approach is why we're different from other renovation firms in NYC.
If you’re ready to renovate and want to limit the headache of legalities and logistics, contact us for a consultation on how we can get your NYC renovation process started.
-min.jpeg)
Most apartment renovations that go beyond cosmetic updates require a work permit from the NYC Department of Buildings. If the scope involves adding or removing walls, changing the room count, reconfiguring a bathroom, or performing a gut renovation, an Alteration Type 2 permit is typically required. Electrical and plumbing permits are filed separately through the DOB as well. In co-ops and condos, building board approval through a formal alteration agreement is required in addition to DOB permits — and many buildings will not grant board approval until they see proof that DOB filings are underway. If the property is a designated landmark or located on a landmarked block, an additional approval from the Landmarks Preservation Commission is required before any exterior-facing changes can proceed. Gallery KBNY files all DOB permits, prepares all board submissions, and coordinates LPC applications as part of our standard design-build scope — these aren't add-ons.
An alteration agreement is the legal document your co-op or condo board requires you to sign before approving any renovation work in your unit. It outlines the rules your contractor must follow — construction hours, insurance requirements, materials restrictions, noise limitations, hallway and elevator protection, and sometimes specific prohibitions on relocating fixtures like kitchen sinks or toilets. Every building's alteration agreement is different, and the requirements can be granular: some boards limit the types of flooring you can install, others require specific sound-dampening underlayments, and most dictate exactly which insurance endorsements your contractor must carry. Failure to comply with the alteration agreement can result in stop-work orders, fines, or forfeiture of your security deposit. Gallery KBNY reviews and satisfies the alteration agreement for every project we take on, ensuring the submission is complete and compliant before it reaches the board.
Open permits from a prior renovation can create real problems. The DOB may require those permits to be closed out — through inspections, completion of unfinished work, or violation remediation — before issuing new permits for your renovation. That means inheriting someone else's unresolved construction issues can delay your project before it even starts. During the purchase process, conduct thorough due diligence by pulling the property's DOB records (available through BIS Online) and reviewing permit history for any open or expired filings. If open permits exist, negotiate with the seller to resolve them prior to closing, or build contingency clauses into the purchase agreement that account for the cost and timeline of resolution. Engaging a real estate attorney experienced in NYC building code alongside a design-build firm that understands DOB processes will help you assess whether the open permits are a minor paperwork issue or a significant liability.
Permit timing is one of the most commonly underestimated variables in a New York City renovation timeline. DOB filings require stamped architectural and engineering drawings, which must be prepared before submission. The review and approval process adds additional time on top of that, with timelines varying based on the permit type, the complexity of the filing, and current DOB processing volume. Standard Alteration Type 2 filings for apartment renovations in Manhattan can take several weeks to several months depending on the scope and whether the filing triggers a plan examination.
The practical implication is that construction cannot begin on permitted work until the permit is in hand. Renovation projects that account for permit timing in their overall schedule and begin the filing process as early as possible during the design phase compress the gap between design completion and construction start. Projects that treat permitting as something that happens after design is finalized routinely sit idle for weeks or longer while waiting for approvals that could have been running in parallel.
These are two distinct requirements that often apply simultaneously to the same renovation, and confusing them is a common source of planning missteps. A permit is issued by a government agency, primarily the New York City Department of Buildings, and confirms that the proposed work complies with the building code and city regulations. Permits are legally required for most structural, plumbing, electrical, gas, and mechanical work. They are issued at the city level and are independent of the building's ownership structure.
A board approval is issued by the co-op or condo's governing board and confirms that the proposed work complies with the building's own rules, as documented in the alteration agreement. Board approvals are a private contractual requirement, not a government one, but they are equally mandatory for work in managed buildings. A renovation that has received DOB permits but does not have board approval cannot legally proceed in a co-op or condo, and vice versa. Both tracks need to be initiated, managed, and completed before construction can begin, and in most cases they run simultaneously during the pre-construction phase.
Many purely cosmetic renovations do not require DOB permits, but the line between what does and does not require a permit is less intuitive than most homeowners expect. Painting, replacing fixtures with like-for-like substitutions, installing new flooring over an existing subfloor, and updating kitchen or bathroom finishes without altering plumbing rough-in locations typically do not require a DOB permit.
Work that involves any change to structural elements, electrical wiring, plumbing, gas lines, HVAC systems, or the configuration of rooms requires a permit regardless of how cosmetically straightforward it may appear. Replacing a kitchen entirely with new cabinetry and countertops but in the same layout, for example, may not require a permit for the cabinetry itself but will if new plumbing connections, electrical circuits, or gas line work is involved. In co-ops and condos, board approval requirements frequently extend to cosmetic work as well, particularly for flooring and any work in wet areas, because the building's alteration agreement governs those requirements independently of whether a DOB permit is needed.
An Alteration Type 2 permit is the most common permit type for significant apartment renovations in New York City. It is required when a renovation involves changes to the building's use, egress, or occupancy in a way that does not rise to the level of a full change-of-occupancy filing, but is more substantial than minor repairs or cosmetic work. In practice, this covers a broad range of apartment renovation scenarios including gut renovations, room additions, bathroom additions, apartment combinations, and any project involving modifications to structural elements, plumbing configurations, or mechanical systems.
An Alteration Type 2 filing requires stamped architectural drawings prepared by a New York State Registered Architect or Licensed Professional Engineer, and typically requires plan examination by the DOB before a permit is issued. For apartment combinations specifically, additional filings with the NYC Department of Finance for a new tax lot are required in the case of condo combinations. The Alteration Type 2 process is one of the primary reasons full apartment renovations in New York City carry a pre-construction timeline of several months before construction can begin.
Yes, but apartment combinations in NYC involve a specific set of regulatory requirements. An Alteration Type 2 permit must be filed with the DOB. The apartments must be either horizontally adjacent on the same floor or vertically stacked across no more than two floors. The combined unit can only have one kitchen — the second must be decommissioned. The means of egress cannot be altered, which means existing entry and exit paths must remain intact. For condo combinations specifically, a new tax lot must be filed with the NYC Department of Finance to reflect the merged unit. On top of the DOB requirements, the co-op or condo board must approve the combination through their alteration agreement process, and many boards impose additional conditions around construction scheduling, structural engineering reviews, and neighbor notification. Gallery KBNY has completed multiple apartment combinations across Manhattan and handles every layer of this process — DOB filings, board submissions, tax lot coordination, and the architectural and construction work itself.
Dynamic Image 1
Dynamic Image 2
.avif)